Erdgeschosswohnung mit 2 Terrassen und guter Rendite 4,50% sucht Investor
Eckdaten
- Art Erdgeschosswohnung
-
Lage
Birkenstraße 106
14822 Borkwalde - Kaufpreis 179.000,00 €
- Kaufpreis pro m² 2.073,68 €
- Hausgeld 497,25 €
- Wohnfläche ca. 86 m²
- Zimmer 3
- Baujahr 1994
- Etagenzahl 3
- Etage 1
- Alt-/Neubau Neubau
- Heizungsart Zentralheizung
- Stellplatztyp Aussenstellplatz
- Vermietet ja
- Fahrzeit Hauptbahnhof 3 min
- Fahrzeit nächste Autobahnauffahrt 5 min
- Fahrzeit nächster Flughafen 50 min
- Bodenbelag Fliesen Laminat PVC
- Ausstattung des Bades Badewanne Fenster
- Zustand Gepflegt
- Immobilien-ID 9003
Immobilie
Rendite 4,58% Kaufpreisfaktor 21,83
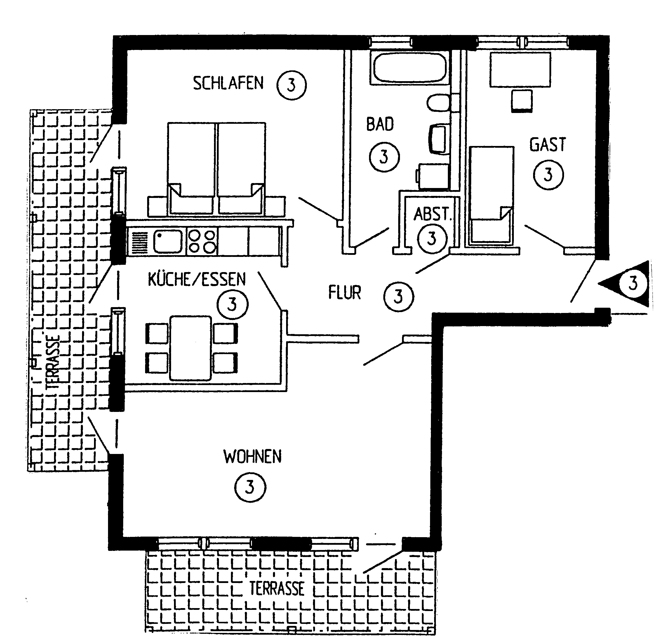
Die angebotene Immobilie ist eine Erdgeschosswohnung in einem Neubau aus dem Jahr 1994. Die Wohnfläche beträgt 86,32 Quadratmeter und die Energieeffizienzklasse ist C. Das Gebäude verfügt über insgesamt drei Etagen, wobei die Wohnung sich auf der ersten Etage befindet. Ein Garten kann genutzt werden, ebenso wie eine Terrasse. Weitere Annehmlichkeiten sind ein Keller und eine Zentralheizung. Der Gebäudezustand ist gepflegt.
Die Wohnung umfasst zwei Schlafzimmer, ein Badezimmer, sowie ein weiteres Zimmer, das als Wohn- oder Esszimmer genutzt werden kann. Die Räume sind großzügig geschnitten und bieten viel Platz für individuelle Gestaltungsmöglichkeiten. Die Terrasse lädt zum Verweilen im Freien ein und der Garten ist ideal für gemütliche Stunden im Grünen.
Die Immobilie ist derzeit vermietet und eignet sich daher als solide Kapitalanlage. Durch die zentrale Lage und die gute Aufteilung der Räume ist die Wohnung auch ideal für Paare oder kleine Familien geeignet. Insgesamt handelt es sich um eine attraktive Immobilie mit zahlreichen Möglichkeiten für die zukünftigen Bewohner.
Lage
Der Ort Borkwalde liegt im Landkreis Potsdam-Mittelmark, inmitten eines ausgedehnten Waldgebietes.
Borkwalde ist ca. 49 km Luftlinie von Berlin entfernt.
Durch die wenige Kilometer entfernten Bundesautobahnen A 9 (München- Berlin) A 10 (Berliner Ring) A 2 (Berlin – Hannover) hat man sehr gute Verkehrsanbindungen in die Richtungen Potsdam/Berlin – Leipzig/ Halle – Magdeburg/Hannover.
Mit dem RE 7 fahren in 41 min. von Berlin Zoologischer Garten nach Borkheide. Der RE 7 fährt von Berlin nach Dessau über Ostkreuz – Ostbahnhof- Alex.- Friedrichstr. – Hbf.- Zoo- Charlottenburg – Wannsee – Potsdam – Seddin – Beelitz – Borkheide – Brück – Bad Belzig – Wiesenburg. Mit der Buslinie 541 (Brück- Borkheide-Busendorf) erreichen Sie von Borkwalde in 3 Minuten Fahrzeit den Bahnhof in Borkheide.
Zum Nachbarort Borkheide mit dem Bahnanschluss RE 7, vielen Einkaufsmöglichkeiten, Schulen, Hotels, Restaurants und dem Waldbad sind es nur wenige Kilometer. Die Fahrradwege zwischen den Orten liegen neben den Straßen und werden sehr gern genutzt.
Die Waldgemeinde Borkwalde, ist ein Ort des Amtsbereiches Brück der für seine Schwedenhaussiedlung und damit verbunden für die zahlreichen und farbenfrohen Holzhäuser weit bekannt ist. In der idyllischen, ruhigen Umgebung von Borkwalde leben derzeit ca. 2000 Einwohner. Mehrere Vereine und ihre Mitglieder, zahlreiche Gewerbetreibende und viele engagierte Bürger sorgen sich um das Wachsen und Gedeihen der Waldsiedlung. In den letzten Jahren wurde Borkwalde von vielen Menschen nicht länger nur als Wochenenddomizil, sondern auch als neuer Wohnsitz entdeckt. In Borkwalde finden Sie: eine Ärztin, eine Hebamme, eine Physiotherapeutin, eine Apotheke, einen Friseur und Kindergärten.
Der Spargelhof Buschmann- Winkelmann ist 5 km von Borkwalde entfernt, hier können Sie einkaufen oder Zeit mit der Familie verbringen.
In der näheren Umgebung finden Sie Brück, Beelitz, Kloster Lehnin und Werder (Havel).
Ausstattung
• Wohnzimmer
• Terrassen 2
• Schlafzimmer 2
• Küche
• Bad mit Badewanne, Bodeneinlauf und Waschmaschinenanschluss
• Mieterkeller mit Stromversorgung (Licht und Steckdose)
• Gemeinschaftskeller Fahrradkeller
• Gemeinschaftskeller Trockenraum
• PKW-Stellplätze auf den Parkplätzen der Wohnungseigentümergemeinschaft
Sonstiges
Keine Provision für Kaufende bei der Stein & Co. Vermögensverwaltung GmbH.
Die Wohnung ist gut vermietet, es gibt keine Probleme, die Mietzahlungen erfolgen zuverlässig.
Es gibt keine Rechtsstreitigkeiten und keine Wohngeldschuldner in dieser Gemeinschaft der Wohnungseigentümer.
Detaillierte Informationen zu den Mietzahlungen, der Eigentumswohnanlage, den Miteigentumsanteilen, den Hausgeldzahlungen und der Erhaltungsrücklage entnehmen Sie bitte der beigelegten Aufstellung.
Unsere gesamten Immobilienangebote finden Sie auf unserer Homepage unter: www.steinundco.de
Alle genannten Angaben zum Objekt beruhen auf den Angaben der Eigentümer.
Die Urheberrechte dieser Veröffentlichung liegen bei der Stein & Co. Vermögensverwaltung GmbH.
Weiterveröffentlichung nur mit Zustimmung der Stein & Co. Vermögensverwaltung GmbH.
Energieausweisangaben
- Enerigeausweistyp Verbrauchsausweis
- Energiekennwert 80 KWh(m²*a)
- Energieeffizienzklasse C
- Energie mit Warmwasser ja
- Energieausweis erstellt am 05.03.2024
- Energieausweis gültig bis 04.03.2034
- Heizungsart Zentralheizung
- Befeuerung / Energieträger Gas
Weitere Informationen
Herzlichen Dank für Ihre Anfrage.
Wir werden diese so schnell wie möglich bearbeiten.
